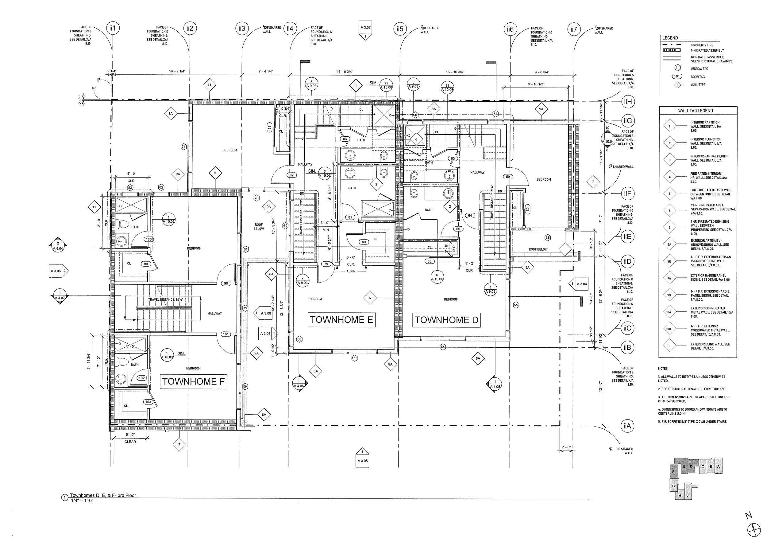
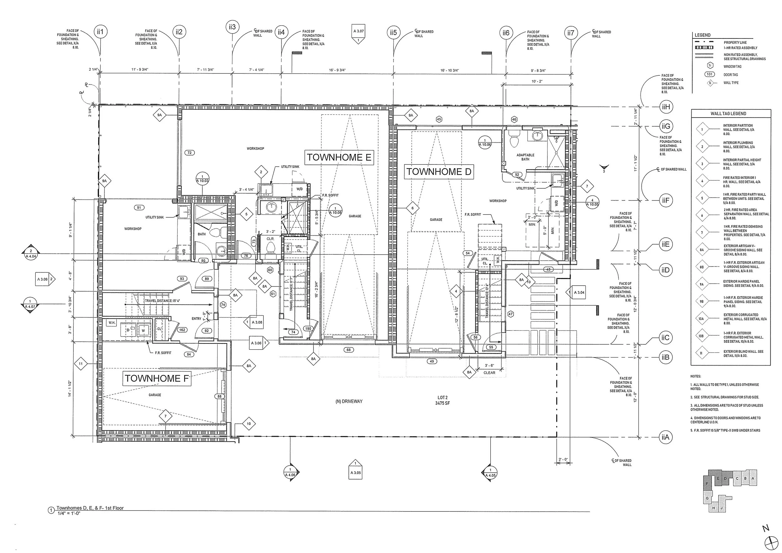
Berkeley | Townhouses

A brief introduction to mid-scale multi-unit design with a planning request for facade redesign and other comments. Interior planning and elevations of spaces was determined.

Completed while working at Baran Studio Architecture

Project Management, Drawings, Design, Construction Administration


Previous
Previous

San Francisco Large Scale Facade Design 2019 | Commercial Center Exterior Improvements

Next
Next

"Refract House" Student Solar Decathlon Entry 2009 | Sustainable Single Family Construction