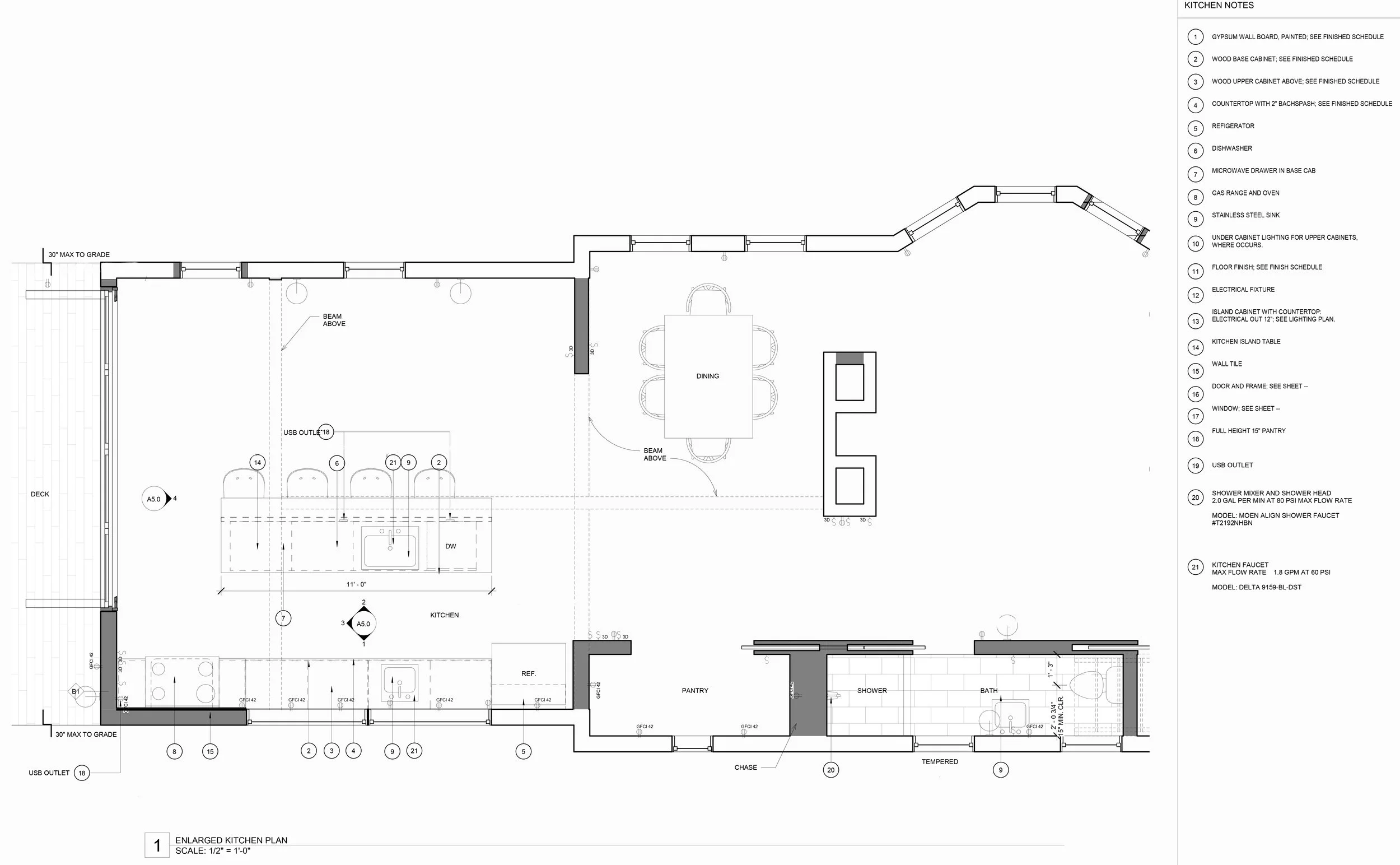
Berkeley | Residential Renovation

A two unit building was renovated into a single family home. The project included a garage to A.D.U. conversion. 

Completed while working at Baran Studio Architecture

Project Management, Drawings, Design, Construction Administration


Previous
Previous

Berkeley Renovation 2017 | Residential Renovation + Interiors

Next
Next

Walnut Creek Single Family Renovation 2018 | Sustainable Renovation + Addition