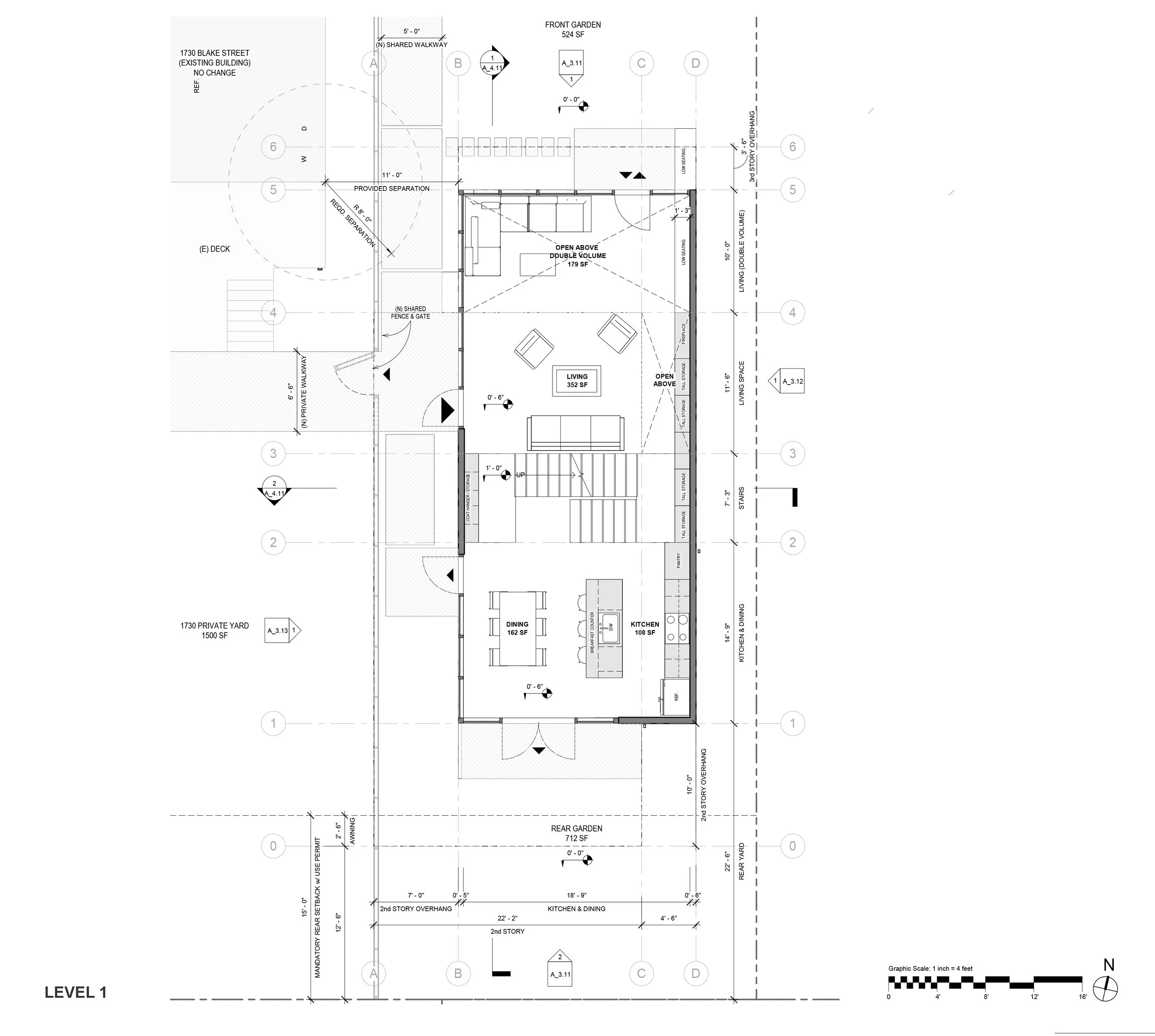
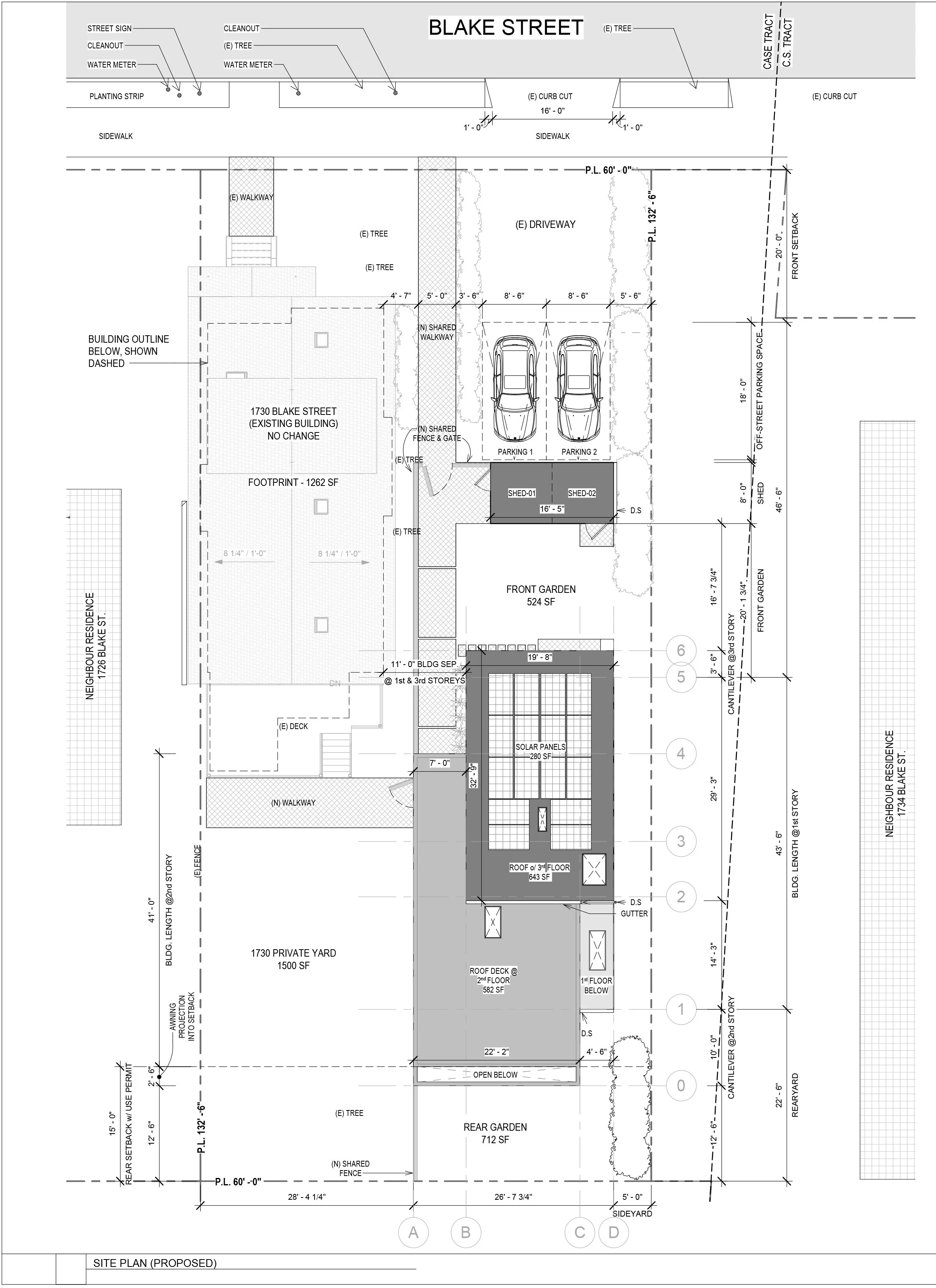
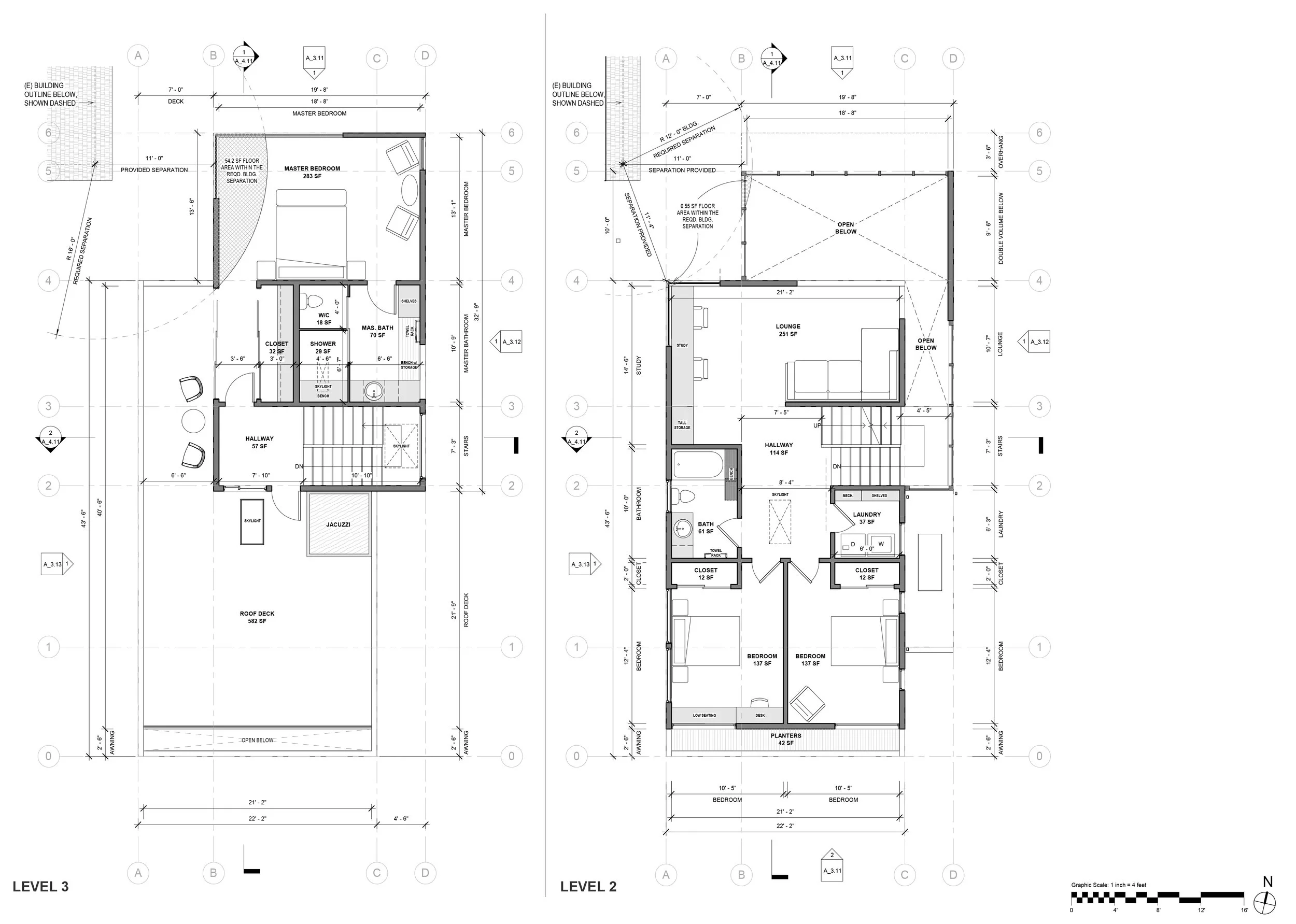
Berkeley | Residential Construction

A 3 story residence with a cantilever for a long time client’s personal home. Structural elements were expressed as architectural features.

Completed while working at Baran Studio Architecture

Project Management, Drawings, Design, Construction Administration


Previous
Previous

Kitchen, Baths, Miscellaneous

Next
Next

San Francisco Large Scale Facade Design 2019 | Commercial Center Exterior Improvements